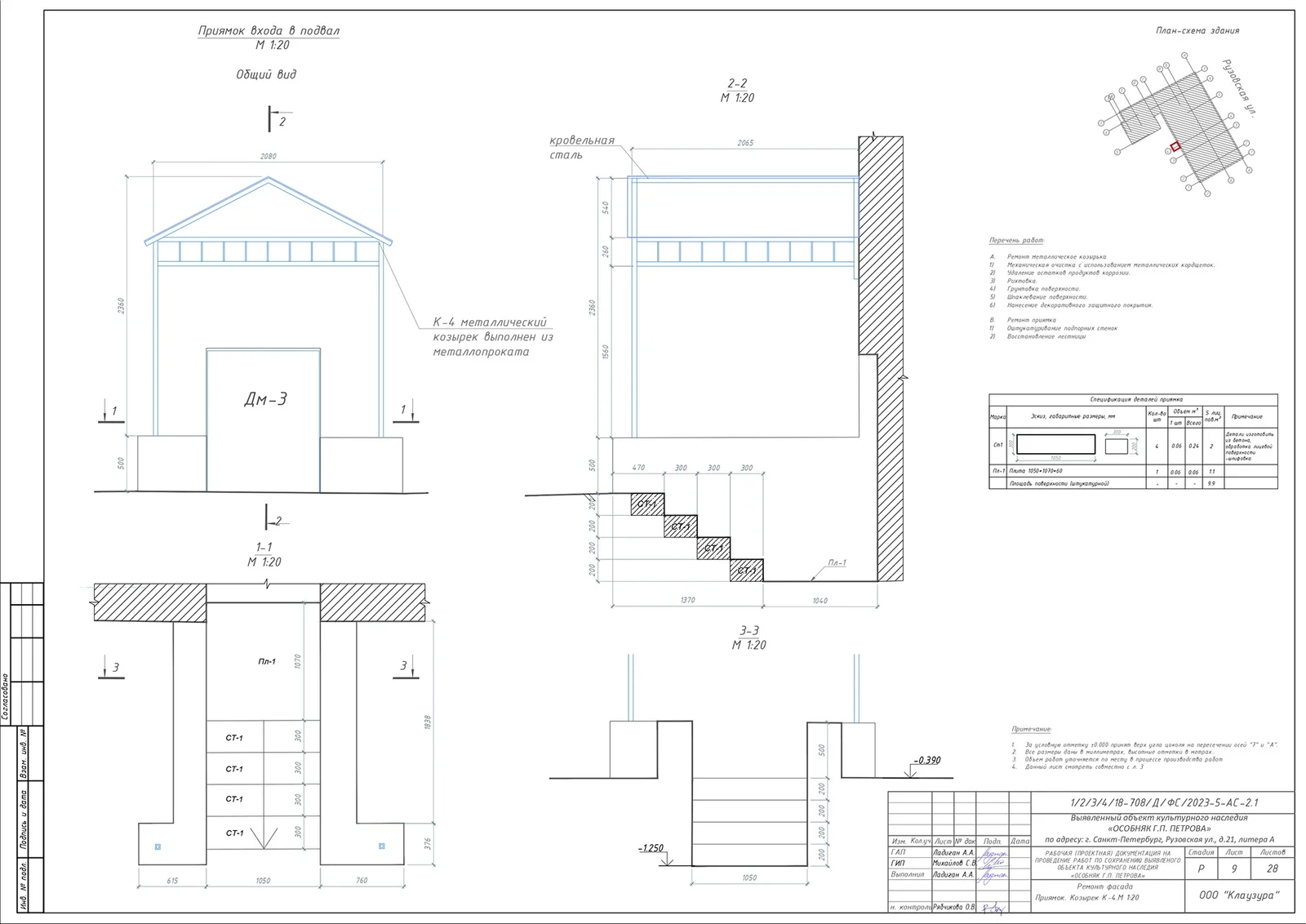
Building Facade Restoration

Architecture · Russia · 2022

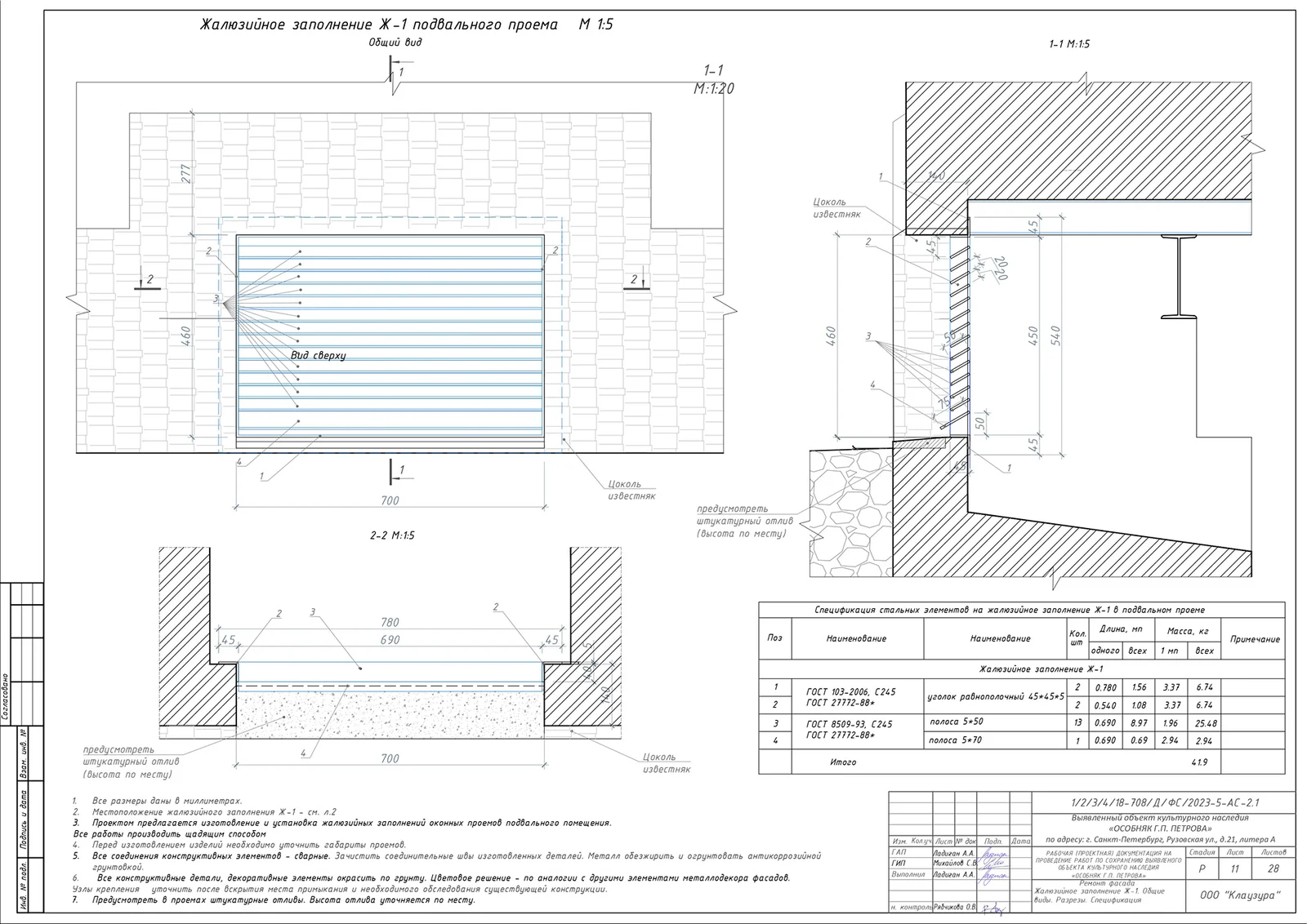
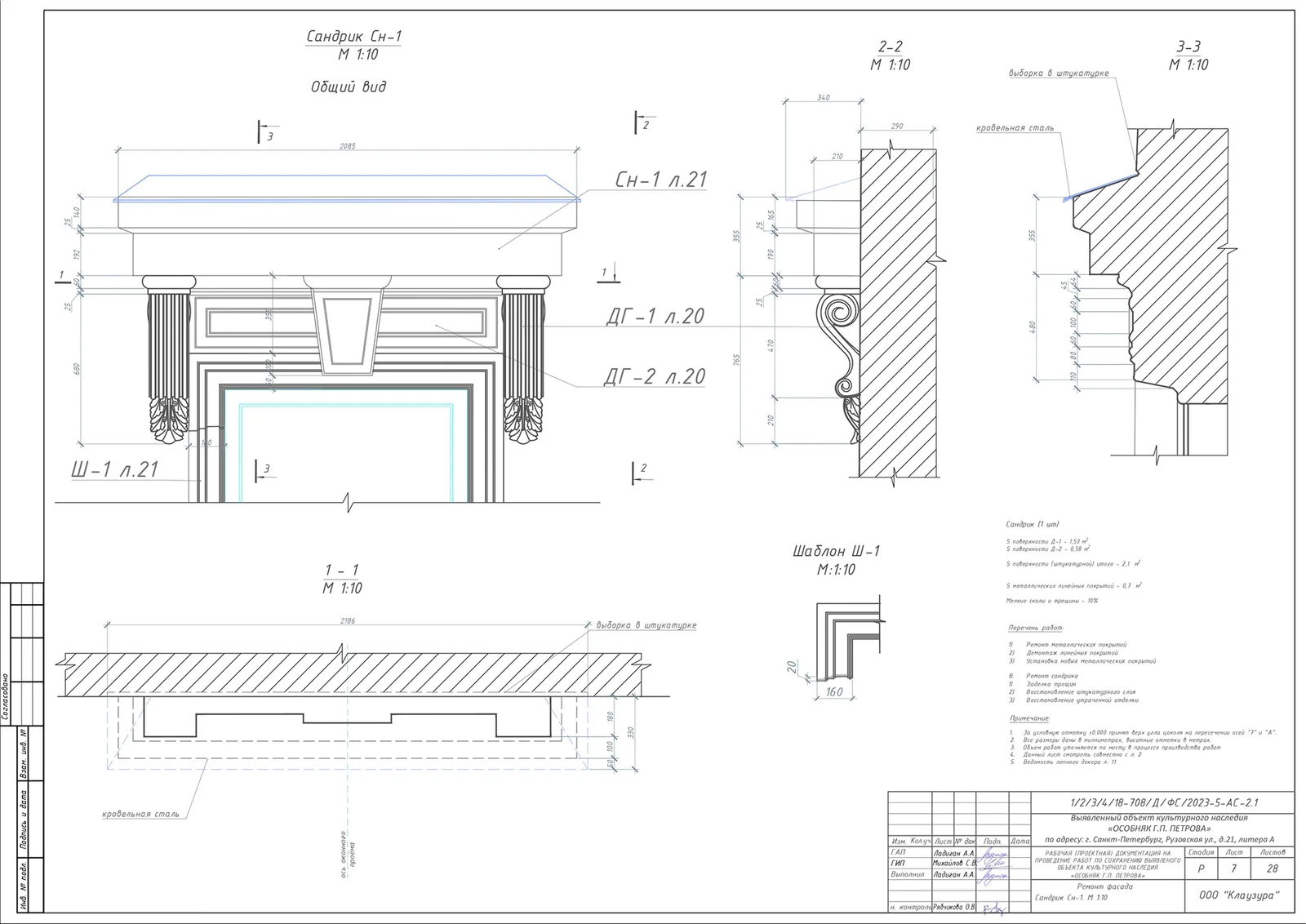
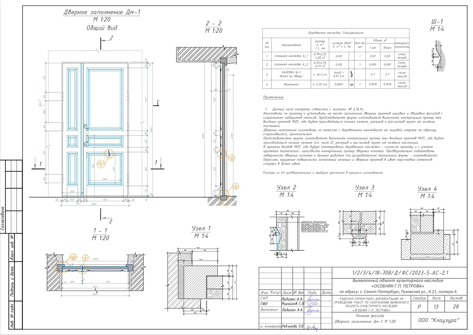
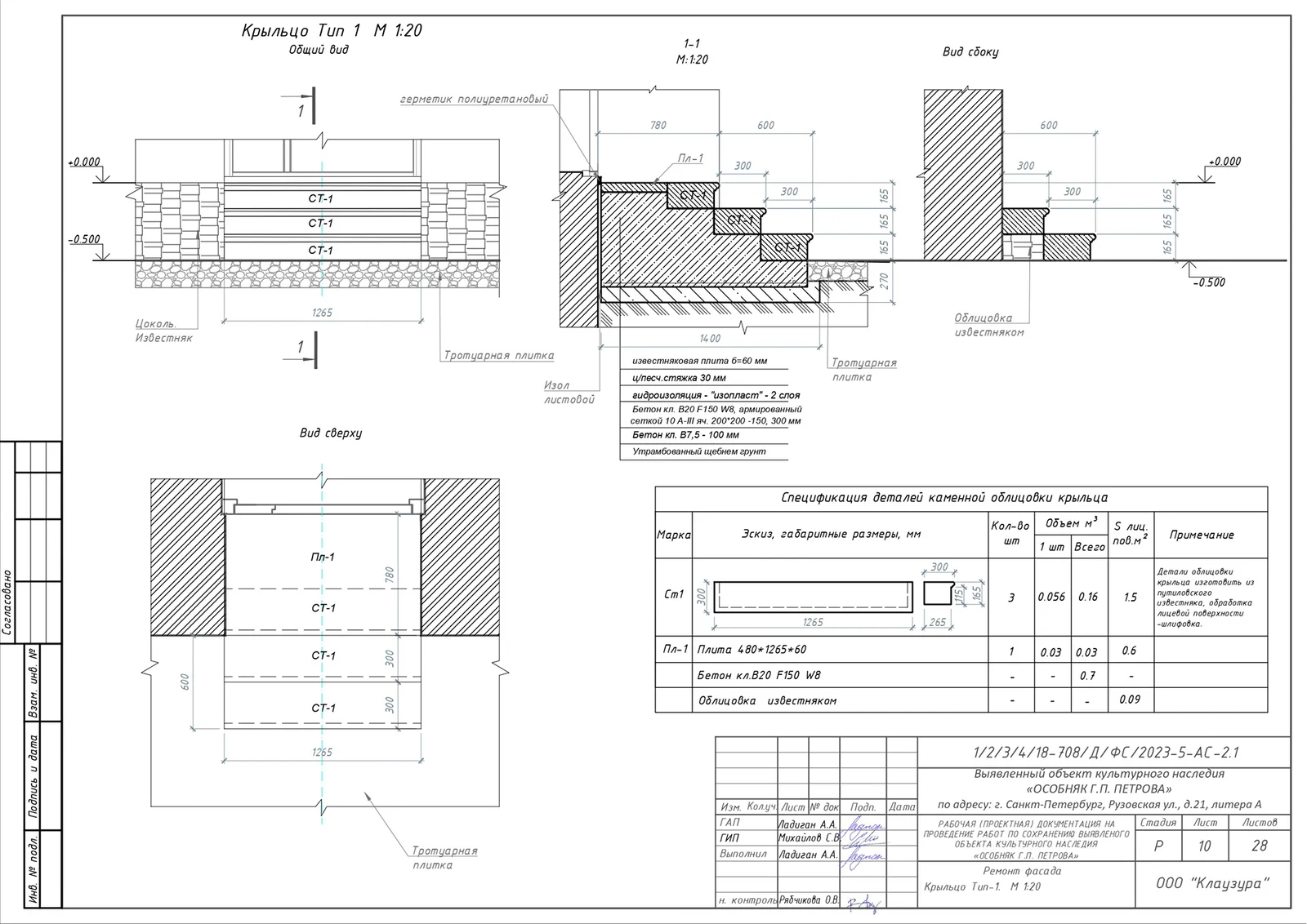
Detailed architectural drawings for the restoration of historic building facades, documenting existing conditions and specifying restoration approaches that preserve architectural heritage.

The drawings serve as essential documentation for craftspeople executing the restoration work, ensuring accuracy and fidelity to original design intent.