St. Petersburg Apartment Interior
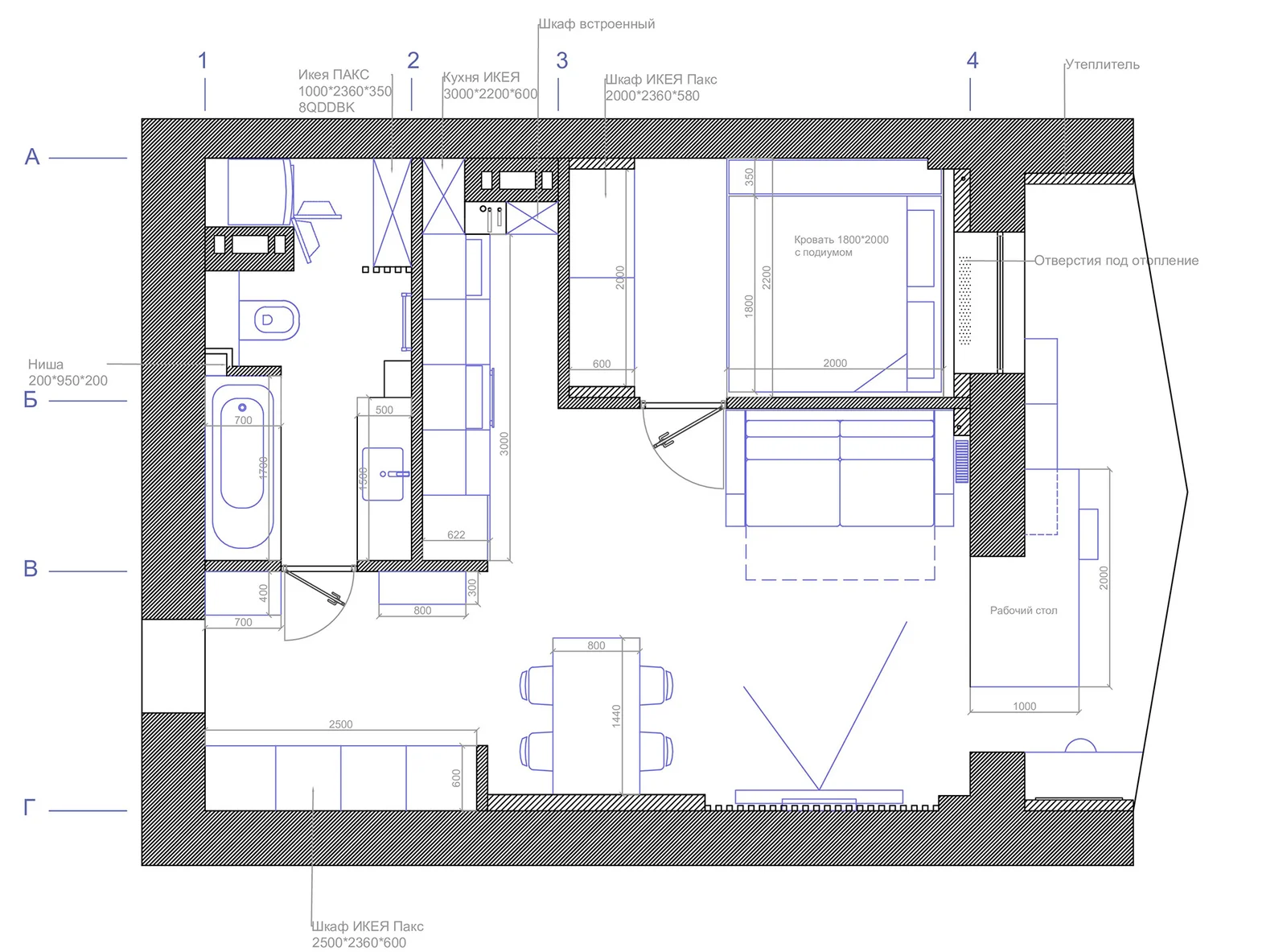
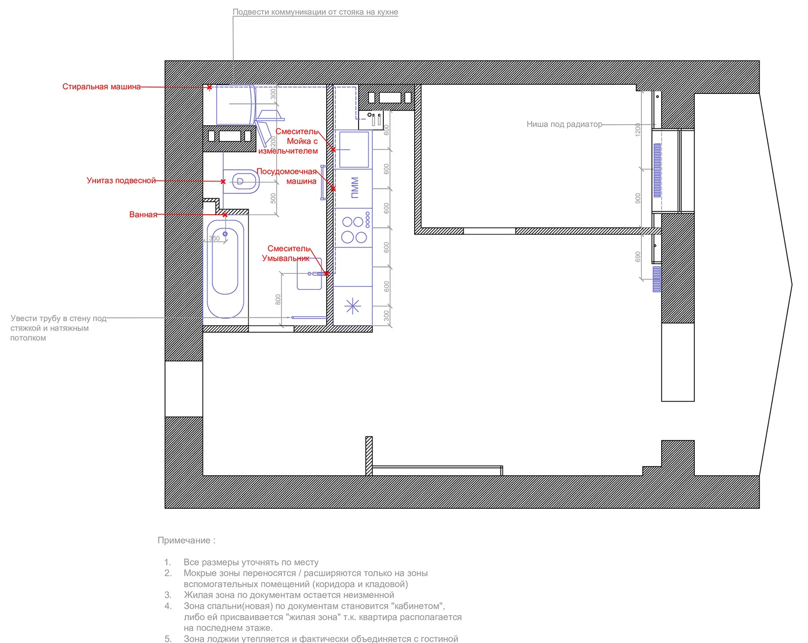
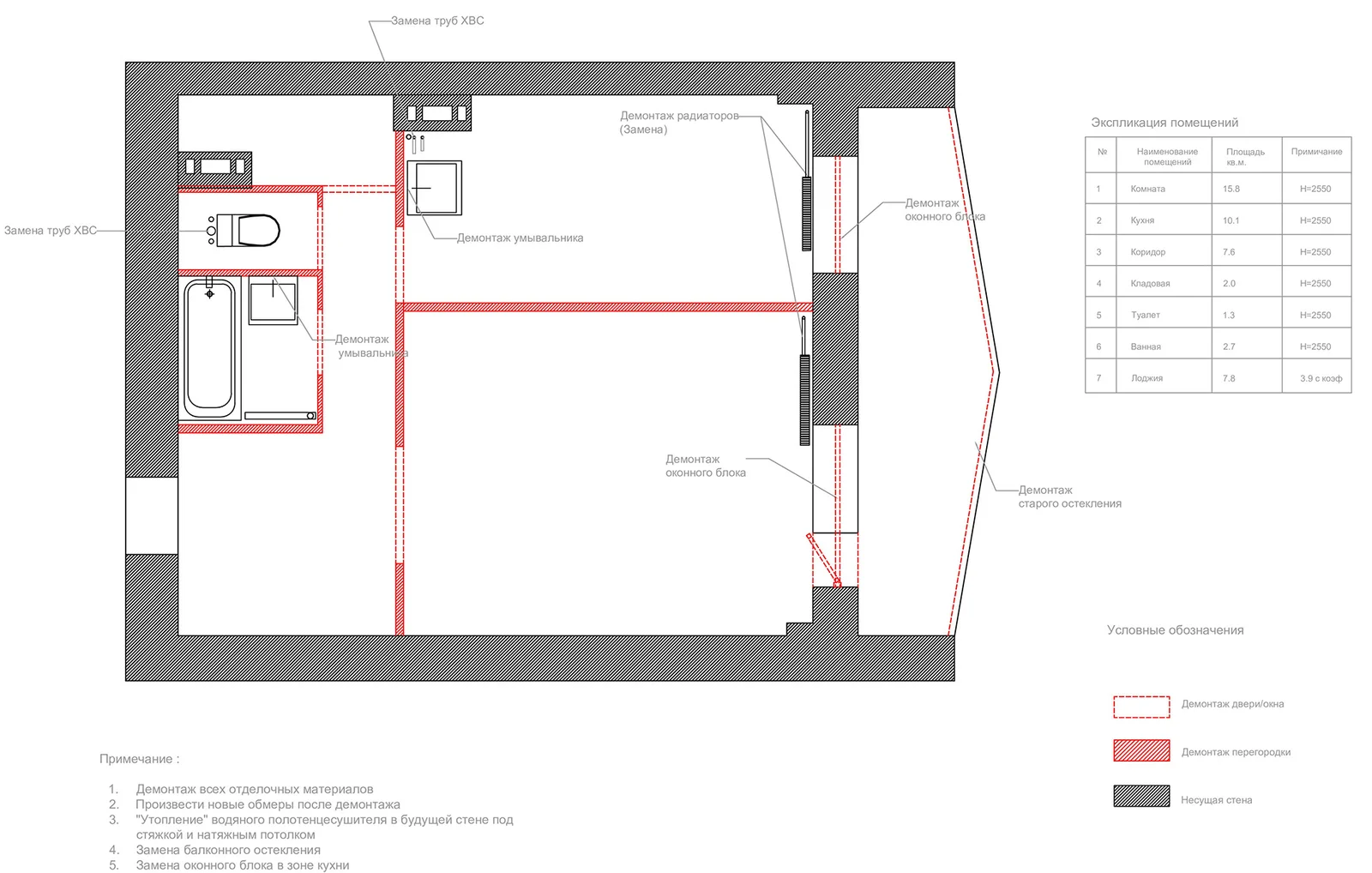
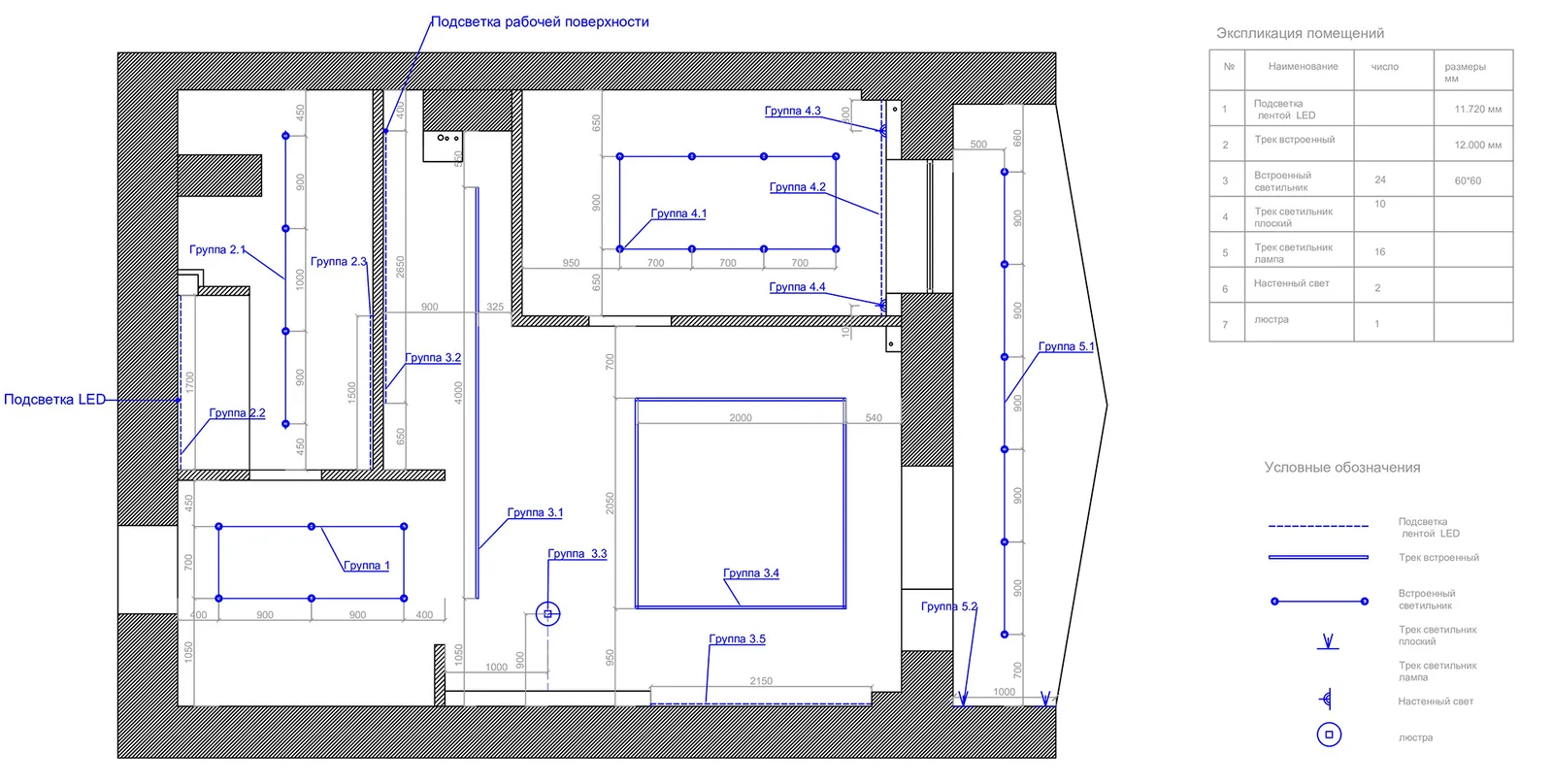
Interior design for a residential apartment in St. Petersburg, blending contemporary comfort with the elegant character of this historic city. The design creates sophisticated living spaces within a classic building.
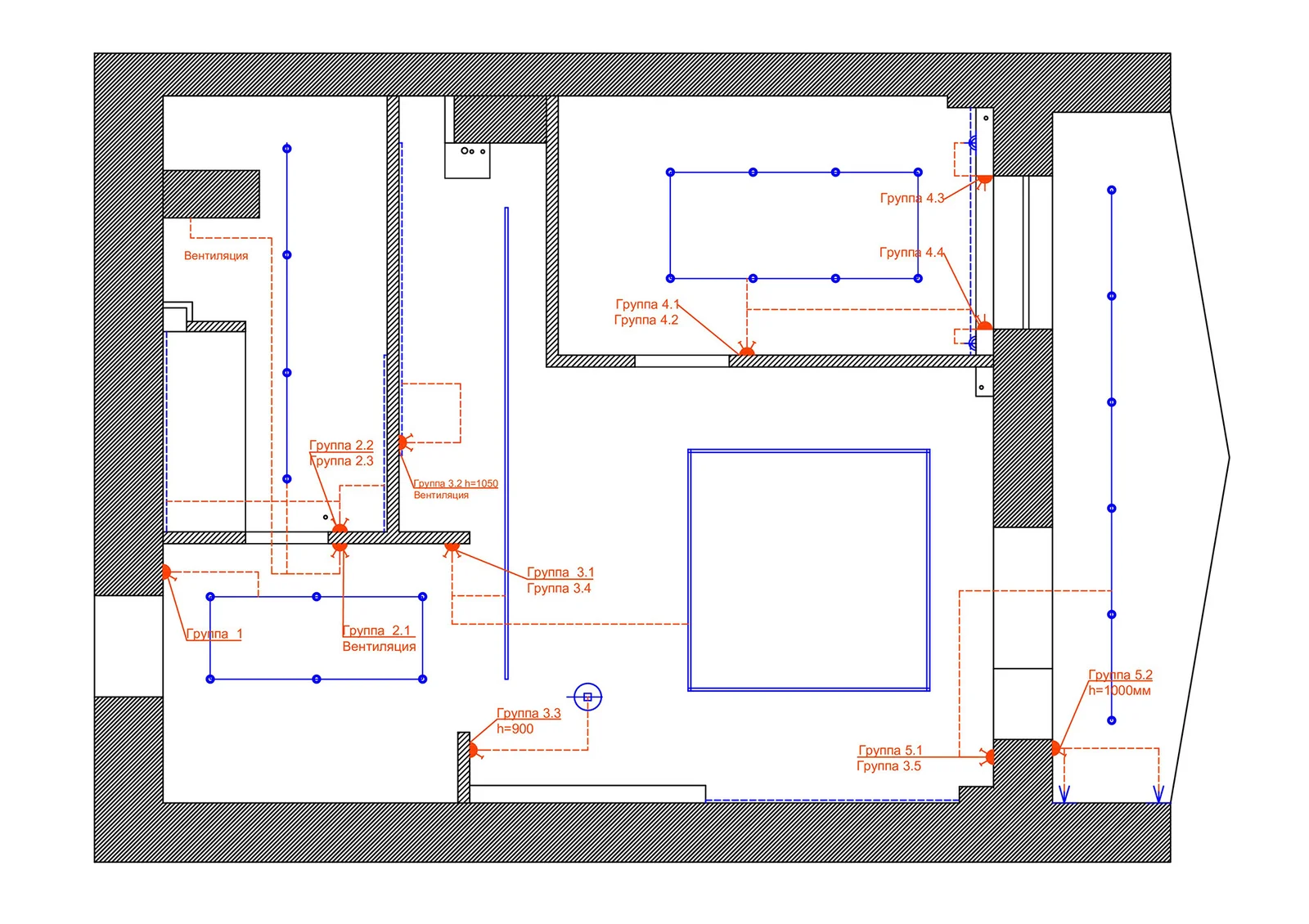
The interiors feature carefully curated materials and furnishings that complement the apartment’s architectural features while meeting the practical needs of modern urban living.




















